HeG Architecture recrute et photos de l'agence (cliquez-ici)
Exemples d'une variété de réalisations, chantiers et projets :
ERP, MARCHÉS PUBLICS... :
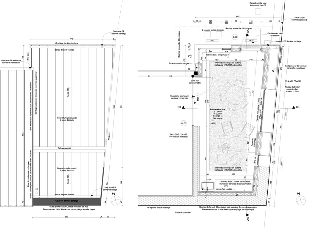
Extension d'école :







Boulangerie communale :






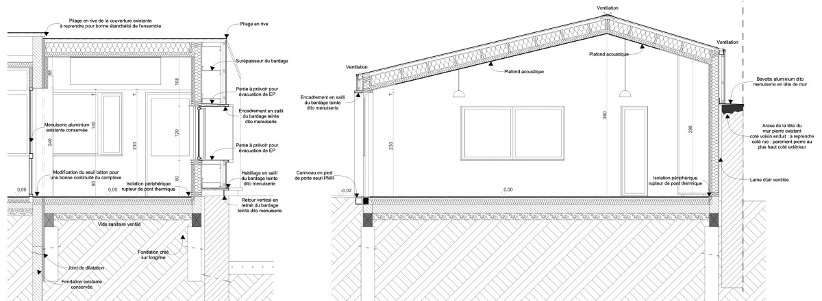
Bureaux (rénovation thermique) :



Crématorium :




Maison médicale dans un existant :








Escape game :

Transformation en bilbiothèque et bureau de poste :

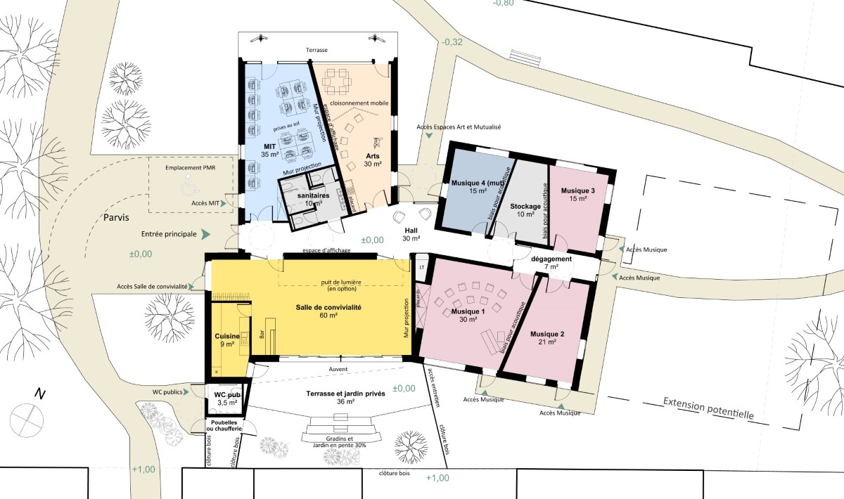
Maison des Associations :




Maison de Santé Pluridisciplinaire :



Office de Tourisme :




Salle de musculation :

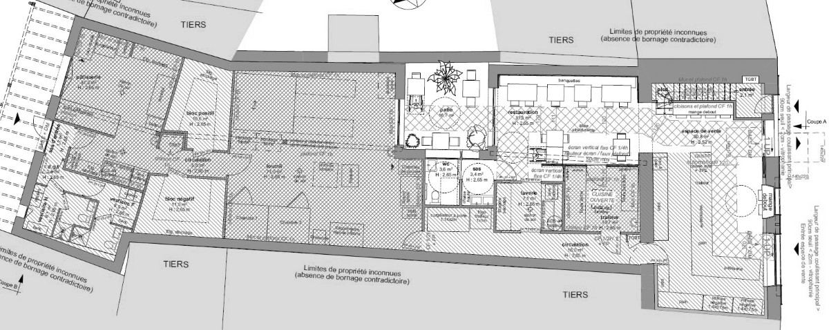
Transformation en restaurant :

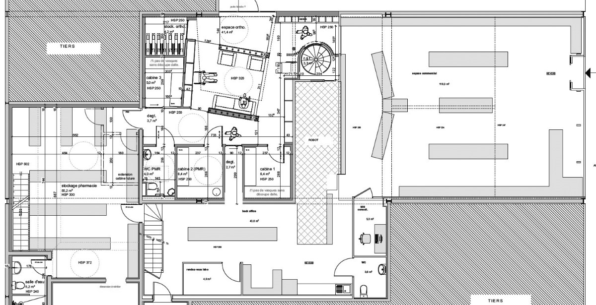
Pharmacie :


Extension pour stockage :



Petit collectif :



Foyer pour internat :

Ouvrages techniques :






Cellules commerciales :

Petit immeuble :

Skatepark intérieur :

Couverture immeuble :

Cantine/restaurant scolaire :



Centre de santé :









Extension de maison médicale :









Hôpital mineurs :


Commerce concept-store :








Cabines de plage :





Extension et transformation en restaurant :









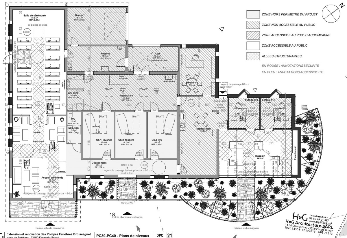
Renovation et extension d'un funérarium :









Hopital de jour :


Atelier et bureaux :





Boulangerie et restaurant :



RÉNOVATIONS POUR DES PARTICULIERS :































EXTENSIONS POUR DES PARTICULIERS :
































































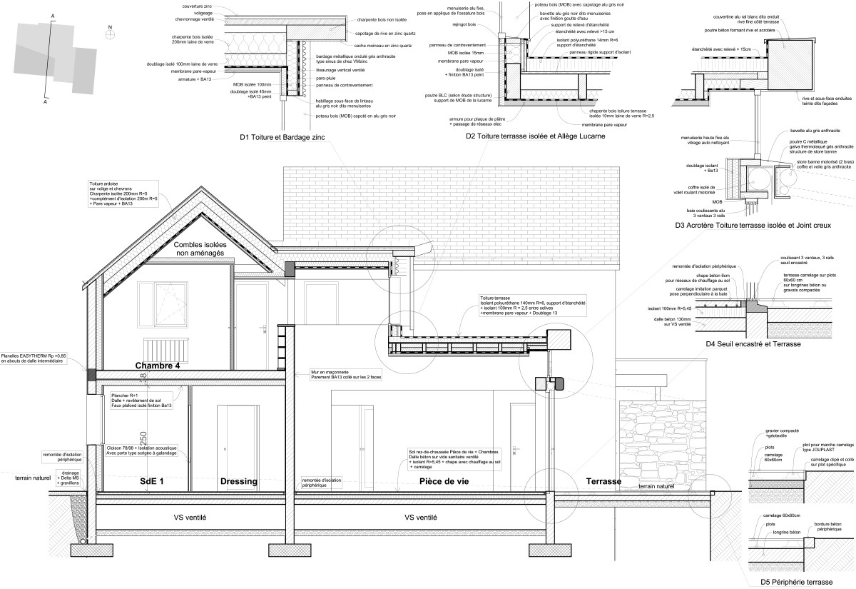
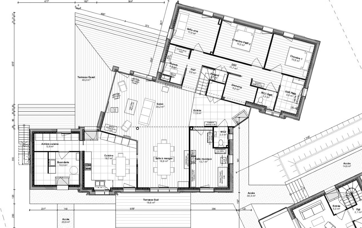
MAISONS POUR DES PARTICULIERS :












































